8 800 700 44 98 по России бесплатно

+7 343 266-41-44

Ваш город:
Все верно

logo
icon cart

8 800 700 44 98 по России бесплатно

+7 343 266-41-44

Ваш город:
Все верно
logo

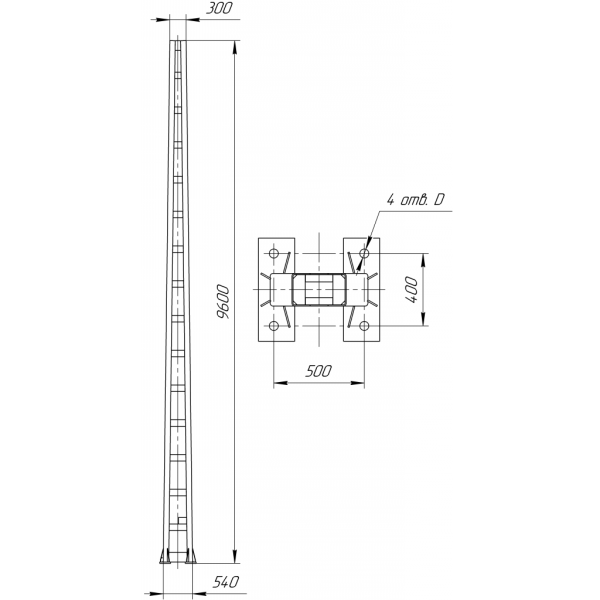
МГК1-10-100

Характеристики:

Длина стойки, м:

10

Масса, кг:

549

Несущая способность, кНм:

100

Тип проката:

швеллер гнутый

Матер.:

металл

В наличии

icon tooltip

Количество уточняйте у менеджера

Договорная

Доставка:

В любую точку России и СНГ

Производитель:

Альдекс

Описание

МГК1-10-60 — металлическая стойка опоры контактной сети ж/д из гнутого швеллера, цельная (один пояс), высотой 12 метров, изготовленная из низколегированной марки стали С345.

Металлические стойки предназначены для использования в качестве основного несущего элемента в составе промежуточных, переходных и анкерных опор КС для монтажа на них кронштейнов, консолей и жестких поперечин. Стойки металлические предназначены для установки на такие же фундаменты типа ТСА (ТСП), что и соответствующие железобетонные.

Характеристики

  • Возможность использования в анкерных опорах скоростных железнодорожных участков благодаря несущей способности стойки более 117 кН*м, позволяющей выдерживать сильное натяжение проводов;
  • Возможность эксплуатации стойки в I–V гололедно-ветровых районах с пониженной до -65°С температурой воздуха и сейсмичностью до 9 баллов.

Особенности конструкции

Стойки опор контактной сети выполнены в виде пространственной стальной конструкции коробчатого сечения. Элементы стойки: пояса, планки, диафрагмы, опорные пластины с ребрами соединяются между собой при помощи сварки. Основная деталь — два пояса изготовлены из гнутого профиля. Остальные элементы — из листового проката. Пояса стоек консольных опор наклонены друг к другу (имеют сбег). В нижней части к поясам привариваются опорные пластины, усиленные ребрами жесткости, для соединения с фундаментом. В верхней части поясов стоек имеются отверстия, к которым крепятся кронштейны и консоли. Для правильной установки стоек на фундамент предусмотрено использование регулировочных шайб, а для защиты от электрокоррозии — изолирующие подкладки
и втулки.

Чертежи
и схемы

Услуги

Выполненные проекты

icon menu Корзина

Оставьте заявку

Оставьте свои контактные данные и мы свяжемся с вами, чтобы ответить на любые вопросы. Или напишите нам в мессенджер:

с политикой конфиденциальности ознакомлен

добавлен в корзину

Перейти в корзину