8 800 700 44 98 по России бесплатно

+7 343 266-41-44

Ваш город:
Все верно

logo
icon cart

8 800 700 44 98 по России бесплатно

+7 343 266-41-44

Ваш город:
Все верно
logo

МГП3-15-150

Характеристики:

Длина стойки, м:

10

Масса, кг:

549

Несущая способность, кНм:

100

Тип проката:

швеллер гнутый

Матер.:

металл

В наличии

icon tooltip

Количество уточняйте у менеджера

Договорная

Доставка:

В любую точку России и СНГ

Производитель:

Альдекс

Описание

МГП1-10-100 — металлическая стойка опоры контактной сети ж/д из гнутого швеллера, цельная (один пояс), высотой 10 метров, изготовленная из низколегированной марки стали С245.

Металлические коробчатые двух швеллерные опоры предназначены для подвешивания контактной сети линий электропередач вдоль железных дорог с целью обеспечения электроэнергией железнодорожного транспорта.

Применяются

  • ветровых районах, в районах по толщине стенки гололеда согласно районированию в соответствии с СП20.13330, районах со снеговыми нагрузками;
  • вне агрессивной, слабо- и среднеагрессивной газообразных средах по воздействию на металлические конструкции СП28.13330;
  • при расчетной температуре окружающего воздуха (средняя температура воздуха наиболее холодной пятидневки обеспеченностью 0,92) поСП131.13330 до —65 °С включительно в районах с сейсмичностью до 9 баллов включительно.

Особенности конструкции

Коробчатые опоры изготавливаются из двух несущих швеллеров, соединенных между собой планками и приваренных к основанию, состоящему из двух плит. Соединение швеллеров с основанием усилено ребрами жесткости. Опору именно такой конструкции и называют «металлическая коробчатая двух швеллерная». Опоры конструктивно выполнены как раздельные, устанавливаемые на железобетонные трехлучевые фундаменты типа ТСА, ТСАЭ, ТСП, ТСПЭ с закреплением их с помощью анкерных болтов, забетонированных в фундамент. Защита от электрокоррозии обеспечивается за счет установки между опорой и фундаментом изолирующего оголовка, а для изоляции болтов от опоры предусматриваются изолирующие втулки и шайбы.

При монтаже возможна регулировка вертикального положения опор путем установки регулировочных П— образных шайб между анкерными болтами и основанием опоры. Для изоляции анкерного болта от опоры между регулировочными шайбами и основанием опоры устанавливается изолирующая П— образная шайба. Общая толщина установленных П— образных шайб недолжна превышать 15мм.

Все опоры защищены от коррозии методом горячего цинкования по ГОСТ 9.307-21.

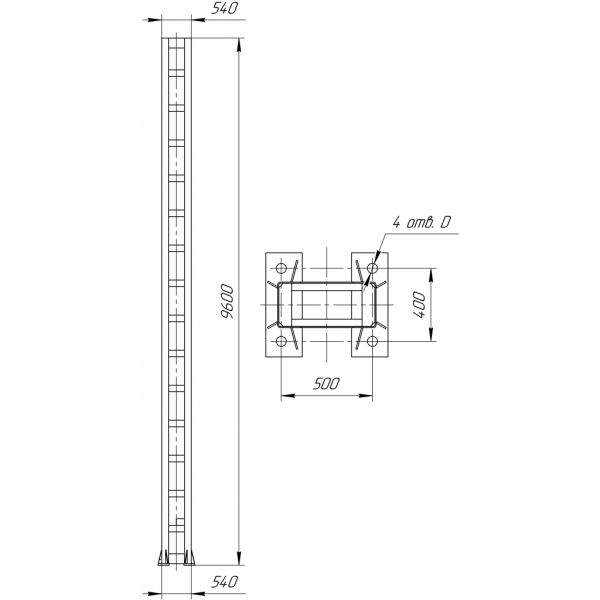
Чертежи
и схемы

Услуги

Выполненные проекты

icon menu Корзина

Оставьте заявку

Оставьте свои контактные данные и мы свяжемся с вами, чтобы ответить на любые вопросы. Или напишите нам в мессенджер:

с политикой конфиденциальности ознакомлен

добавлен в корзину

Перейти в корзину