8 800 700 44 98 по России бесплатно

+7 343 266-41-44

Ваш город:
Все верно

logo
icon cart

8 800 700 44 98 по России бесплатно

+7 343 266-41-44

Ваш город:
Все верно
logo

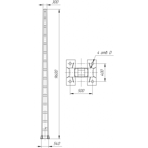
МШП1-10-100

Характеристики:

Длина стойки, мм:

9600

Масса, кг:

536

Несущая способность, кН·м:

98 / 79

Ширина вверху, мм:

540

Ширина внизу, мм:

540

В наличии

icon tooltip

Количество уточняйте у менеджера

Договорная

Доставка:

В любую точку России и СНГ

Производитель:

Альдекс

Описание

МШП1-10-100 — это металлическая коробчатая двухшвеллерная опора предназначеная для подвешивания контактной сети линий электропередач вдоль железных дорог с целью обеспечения электроэнергией железнодорожного транспорта.

Применение

Металлические коробчатые двухшвеллерные опоры МШП1-10-100 применяются:

  • I–VII ветровых районах, в I–V районах по толщине стенки гололеда согласно районированию в соответствии с СП 20.13330, I–VI районах со снеговыми нагрузками;
  • в неагрессивной, слабо- и среднеагрессивной газообразных средах по воздействию на металлические конструкции СП 28.13330;
  • при расчетной температуре окружающего воздуха (средняя температура воздуха наиболее холодной пятидневки обеспеченностью 0,92) по СП 131.13330 до –65 °С включительно в районах с сейсмичностью до 9 баллов включительно.

Особенности конструкции

Коробчатые опоры изготавливаются из двух несущих швеллеров, соединенных между собой планками и приваренных к основанию, состоящему из двух плит. Соединение швеллеров с основанием усилено ребрами жесткости. Опору именно такой конструкции и называют «металлическая коробчатая двухшвеллерная».

Опоры конструктивно выполнены как раздельные, устанавливаемые на железобетонные трехлучевые фундаменты типа ТСА, ТСАЭ, ТСП, ТСПЭ с закреплением их с помощью анкерных болтов, забетонированных в фундамент. Защита от электрокоррозии обеспечивается за счет установки между опорой и фундаментом изолирующего оголовка, а для изоляции болтов от опоры предусматриваются изолирующие втулки и шайбы.

При монтаже возможна регулировка вертикального положения опор путем установки регулировочных П – образных шайб между анкерными болтами и основанием опоры. Для изоляции анкерного болта от опоры между регулировочными шайбами и основанием опоры устанавливается изолирующая П – образная шайба. Общая толщина установленных П – образных шайб не должна превышать 15 мм.

Все опоры защищены от коррозии методом горячего цинкования по ГОСТ 9.307-21.

Чертежи
и схемы

Услуги

Выполненные проекты

icon menu Корзина

Оставьте заявку

Оставьте свои контактные данные и мы свяжемся с вами, чтобы ответить на любые вопросы. Или напишите нам в мессенджер:

с политикой конфиденциальности ознакомлен

добавлен в корзину

Перейти в корзину