8 800 700 44 98 по России бесплатно

+7 343 266-41-44

Ваш город:
Все верно

logo
icon cart

8 800 700 44 98 по России бесплатно

+7 343 266-41-44

Ваш город:
Все верно
logo

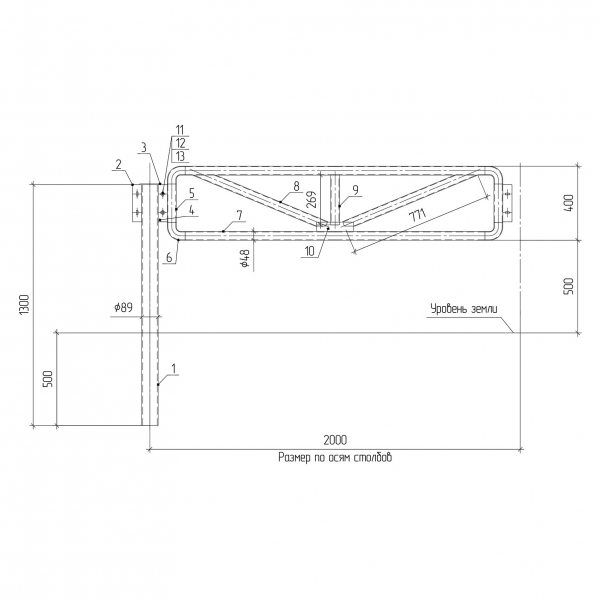
Перильные ограждения | ПО-9

Характеристики:

В наличии

icon tooltip

Количество уточняйте у менеджера

Договорная

Доставка:

В любую точку России и СНГ

Описание


НАЗНАЧЕНИЕ ПЕРИЛЬНЫХ ОГРАЖДЕНИЙ

Используются для ограждения тротуаров, дворовых территорий, детских площадок, общественных зданий, парковок. Такие металлоконструкции делятся на три типа:

  • ограничивающие - не позволяют пешеходам выйти на проезжую часть в неположенном месте;
  • удерживающие - предотвращают падение пешеходов с мостовых конструкций или с насыпи вдоль дорожного полотна;
  • газонные ограждения - защищают зеленые насаждения от вытаптывания и автотранспорта.

ПОКРЫТИЕ

Могут быть защищены от коррозии несколькими способами, в зависимости от требований места установки:

  • нанесением грунта ГФ и высококачественного лакокрасочного покрытия;
  • горячим цинком (90-110 мкм), согласно техническим условиям.

ИЗГОТОВЛЕНИЕ ПЕРИЛЬНОГО ОГРАЖДЕНИЯ

Перильные ограждения из нержавеющей стали изготавливаются из круглой или профильной стальной трубы, круга или полосы.

СПОСОБ УСТАНОВКИ

Могут устанавливаться как с помощью бетонирования, так и вбивания стоек в грунт. Перильные ограждения можно купить в ООО «Альдекс» по выгодной цене.
 

Чертежи
и схемы

Услуги

Выполненные проекты

icon menu Корзина

Оставьте заявку

Оставьте свои контактные данные и мы свяжемся с вами, чтобы ответить на любые вопросы. Или напишите нам в мессенджер:

с политикой конфиденциальности ознакомлен

добавлен в корзину

Перейти в корзину