8 800 700 44 98 по России бесплатно

+7 343 266-41-44

logo
icon cart

8 800 700 44 98 по России бесплатно

+7 343 266-41-44 Екатеринбург

logo

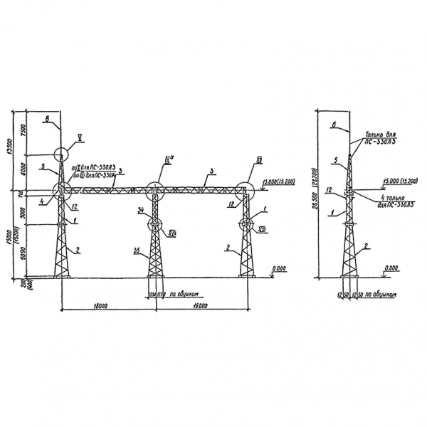
Портал ОРУ ПС-330Я2

Характеристики:

Высота, м:

15 (15,2)

Масса, кг:

11643

Проект:

3.407.9-149 выпуск 2

Тип:

ячейковый

Число стоек:

3

Шифр опор:

ПС-330Я4

В наличии

icon tooltip

Количество уточняйте у менеджера

Договорная

Доставка:

В любую точку России и СНГ

Описание

Портал ОРУ ПС-330Я4 — это несущая конструкция, лежащая в основе открытых распределительных устройств. Подобные конструкции представляют собой своеобразные держатели проводов, выполненные сварным, болтовым или комбинированным методом. Так как стальные порталы ОРУ ПС-330Я4 могут использоваться в большом диапазоне температур (от -40 до +50 градусов), их монтаж производится в различных регионах нашей страны как северных, так и южных. Порталы ОРУ ПС-330Я4 выполняются из нержавеющих стальных сплавов или стали, прошедшей дополнительную обработку антикоррозийными методами. В связи с тем, что подобные конструкции используются на открытом воздухе, они обязательно должны выдерживать следующие виды нагрузок: вес фиксируемых проводов, грозозащитных тросов и других монтируемых конструкций, а также давление ветра, оказываемое на саму конструкцию порталов ОРУ ПС-330Я4, на провода и тросы. В районах, где наблюдаются минусовые температуры, стальные порталы также должны выдерживать вес льда, который может образовываться на проводах и элементах конструкции.

Чертежи
и схемы

Услуги

Выполненные проекты

icon menu Корзина

Оставьте заявку

Оставьте свои контактные данные и мы свяжемся с вами, чтобы ответить на любые вопросы. Или напишите нам в мессенджер:

с политикой конфиденциальности ознакомлен

добавлен в корзину

Перейти в корзину